Connect With Us
Connect With Us
HOME
ABOUT US
SAN DIEGO
ARIZONA
INFRASTRUCTURE
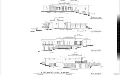
Lot 43 Artesano at Troon
Lot 43 Artesano at Troon
For Sale
4
1
2
5
We are the leader in the industry
Get A Quote